|
 |
|
In addition to saving your plans, your portfolio provides easy access to plan brochures that let you view, print, and compare plans before making your final selection. Requires Account. |
 |
 |
The Plan Brochure contains all the information you need to compare and make your final selection. For a single plan, click the View Brochure below. To print more than one plan, click Add to My Portfolio and access them from there |
| |
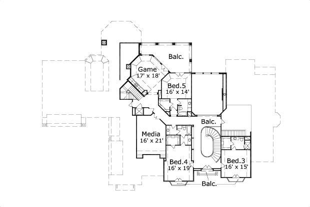
The Solana 7670 040769 |
 |
| Printed Plans | $1,000.00 |
| Plans On CD | $1,450.00 |
|
 |
 |
|
|
Special Features
Butler Pantry
Home Office
Exercise Room
Theater/Media
Ext. Balcony
Wine Closet
Cov'd. Rear Porch
Sep. Master Closet
Outdoor Kitchen
Cov'd. Pavilion
Bar
Cov'd. Side Porch
Master w/Sitting
Portico
Optional Elevator
Unfinished Storage
Outdoor Fireplace
Cabana Bath
Mud Entry
Gallery
Loggia
Int. Balcony
Foyer
2 Story Living
| Specifications |
| Style |
Country French |
| Exterior Materials |
Brick |
| Bedrooms |
5 |
Bathrooms (Full / Half) |
5 / 1 |
| Total Living Sq Ft |
7,670 |
| Total Covered Sq Ft |
10,756 |
| Total Dimensions |
Width |
Depth |
Height |
| |
131' 6" |
90' 10" |
35' 1" |
| Standard Features |
| |
First Floor |
Other Floors |
| Square Footage |
5,135 |
2,535 |
| Bedrooms |
2 |
3 |
| Ceiling Height(s) |
11' 0" |
10' 0" |
| Master Bedroom | X | |
| Dining Room | X | |
| Living Room | X | |
| Family Room | X | |
| Game Room | | X |
| Study | X | |
| Guest Room | X | |
| Home Theater | | X |
| Garage Info |
4 car, Front Load, Split |
| Stair Info |
Curved (2 flights) |
|