|
 |
|
In addition to saving your plans, your portfolio provides easy access to plan brochures that let you view, print, and compare plans before making your final selection. Requires Account. |
 |
 |
The Plan Brochure contains all the information you need to compare and make your final selection. For a single plan, click the View Brochure below. To print more than one plan, click Add to My Portfolio and access them from there |
| |
The Batiste 5403 000024 |
 |
| Printed Plans | $750.00 |
| Plans On CD | $1,200.00 |
|
 |
 |
|
|
Special Features
Home Office
Cov'd. Rear Porch
Outdoor Kitchen
Shop
Cov'd. Side Porch
Master w/Sitting
Hobby Room
Opt. Pool Bath
Playroom
| Specifications |
| Style |
Mediterranean |
| Exterior Materials |
Stucco |
| Bedrooms |
5 |
Bathrooms (Full / Half) |
4 / 2 |
| Total Living Sq Ft |
5,403 |
| Total Covered Sq Ft |
6,807 |
| Total Dimensions |
Width |
Depth |
Height |
| |
101' 0" |
77' 2" |
31' 2" |
| Standard Features |
| |
First Floor |
Other Floors |
| Square Footage |
3,034 |
2,369 |
| Bedrooms |
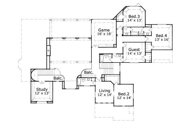
1 |
4 |
| Ceiling Height(s) |
10' 0" |
9' 0" |
| Master Bedroom | X | |
| Dining Room | X | |
| Living Room | X | |
| Family Room | X | |
| Game Room | | X |
| Study | | X |
| Guest Room | | X |
| Garage Info |
3 car, Front Load, Split |
| Stair Info |
Standard (2 flights) |
|