|
 |
|
In addition to saving your plans, your portfolio provides easy access to plan brochures that let you view, print, and compare plans before making your final selection. Requires Account. |
 |
 |
The Plan Brochure contains all the information you need to compare and make your final selection. For a single plan, click the View Brochure below. To print more than one plan, click Add to My Portfolio and access them from there |
| |
Harper 6730 220026 |
 |
| Printed Plans | $0.00 |
| Plans On CD | $0.00 |
|
 |
 |
|
|
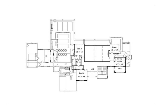
Special Features
Bar
Cov'd. Front Porch
Cov'd. Rear Porch
Exercise Room
Foyer
Gallery
Gameroom
Home Office
Lanai
Landing
Master Down
Mud Room
Outdoor Kitchen
Theater/Media
| Specifications |
| Style |
Transitional |
| Exterior Materials |
Stone & Stucco |
| Bedrooms |
5 |
Bathrooms (Full / Half) |
5 / 2 |
| Total Living Sq Ft |
6,730 |
| Total Covered Sq Ft |
9,504 |
| Total Dimensions |
Width |
Depth |
Height |
| |
141' 6" |
97' 4" |
33' 1" |
| Standard Features |
| |
First Floor |
Other Floors |
| Square Footage |
5,120 |
1,610 |
| Bedrooms |
3 |
2 |
| Ceiling Height(s) |
12' 0" |
11' 0" |
| Master Bedroom | X | |
| Dining Room | X | |
| Living Room | X | |
| Family Room | X | |
| Game Room | X | |
| Study | X | |
| Guest Room | X | |
| Home Theater | X | |
| Garage Info |
3 car, Side Load, Split |
|