|
 |
|
In addition to saving your plans, your portfolio provides easy access to plan brochures that let you view, print, and compare plans before making your final selection. Requires Account. |
 |
 |
The Plan Brochure contains all the information you need to compare and make your final selection. For a single plan, click the View Brochure below. To print more than one plan, click Add to My Portfolio and access them from there |
| |
Banks 5129 210291 |
 |
| Printed Plans | $0.00 |
| Plans On CD | $0.00 |
|
 |
 |
|
|
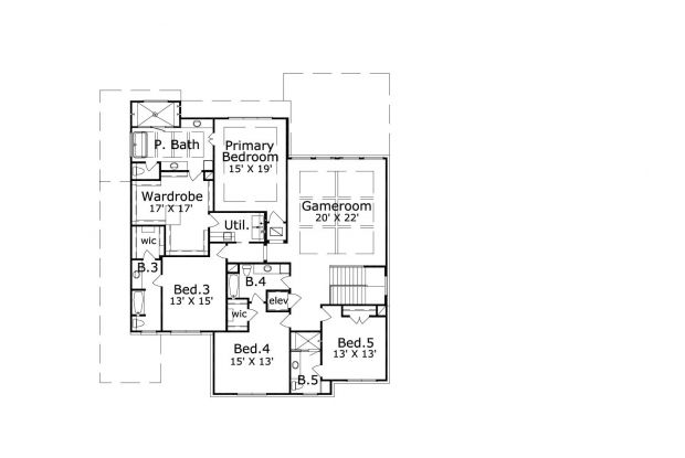
Special Features
Bar
Butler Pantry
Cov'd. Front Porch
Cov'd. Pavilion
Elevator
Foyer
Master Up
Mud Entry
Outdoor Kitchen
| Specifications |
| Style |
Transitional |
| Exterior Materials |
Brick |
| Bedrooms |
5 |
Bathrooms (Full / Half) |
5 / 1 |
| Total Living Sq Ft |
5,129 |
| Total Covered Sq Ft |
6,295 |
| Total Dimensions |
Width |
Depth |
Height |
| |
60' 2" |
67' 4" |
32' 10" |
| Standard Features |
| |
First Floor |
Other Floors |
| Square Footage |
2,501 |
2,628 |
| Bedrooms |
1 |
4 |
| Ceiling Height(s) |
11' 0" |
10' 0" |
| Master Bedroom | | X |
| Dining Room | X | |
| Living Room | X | |
| Family Room | X | |
| Game Room | | X |
| Study | X | |
| Guest Room | X | |
| Garage Info |
2 car, Front Load, Straight In |
| Stair Info |
Standard |
|