|
 |
|
In addition to saving your plans, your portfolio provides easy access to plan brochures that let you view, print, and compare plans before making your final selection. Requires Account. |
 |
 |
The Plan Brochure contains all the information you need to compare and make your final selection. For a single plan, click the View Brochure below. To print more than one plan, click Add to My Portfolio and access them from there |
| |
Mt. Vernon 3265 140014B |
 |
| Printed Plans | $0.00 |
| Plans On CD | $0.00 |
|
 |
 |
|
|
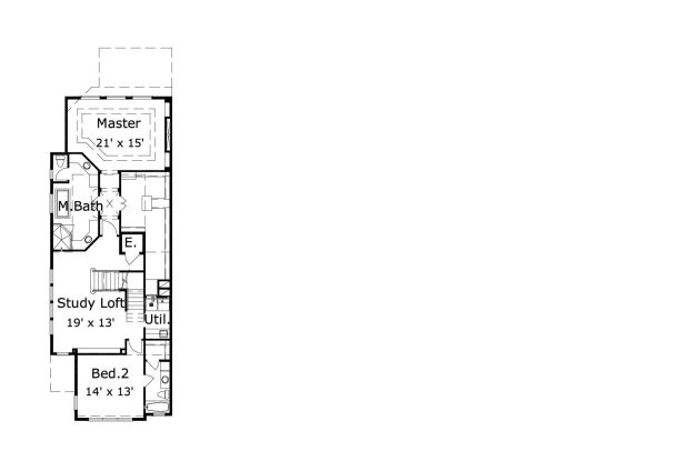
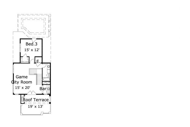
Special Features
Bar
Foyer
Gameroom
Loft
Roof Terrace
| Specifications |
| Style |
French |
| Exterior Materials |
Stone & Stucco |
| Bedrooms |
3 |
Bathrooms (Full / Half) |
3 / 1 |
| Total Living Sq Ft |
3,265 |
| Total Covered Sq Ft |
4,089 |
| Total Dimensions |
Width |
Depth |
Height |
| |
25' 0" |
75' 0" |
0' 0" |
| Standard Features |
| |
First Floor |
Other Floors |
| Square Footage |
1,010 |
2,255 |
| Bedrooms |
0 |
3 |
| Ceiling Height(s) |
11' 0" |
10' 0" |
| Master Bedroom | | X |
| Game Room | | X |
| Garage Info |
2 car, Front Load, Straight In |
|