|
 |
|
In addition to saving your plans, your portfolio provides easy access to plan brochures that let you view, print, and compare plans before making your final selection. Requires Account. |
 |
 |
The Plan Brochure contains all the information you need to compare and make your final selection. For a single plan, click the View Brochure below. To print more than one plan, click Add to My Portfolio and access them from there |
| |
Orsman 3111 130090 |
 |
| Printed Plans | $0.00 |
| Plans On CD | $0.00 |
|
 |
 |
|
|
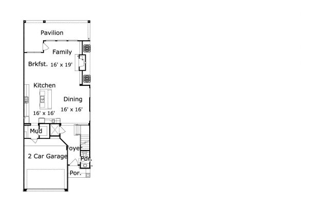
Special Features
Cov'd. Pavilion
Foyer
Int. Balcony
| Specifications |
| Style |
Transitional |
| Exterior Materials |
Stone & Stucco |
| Bedrooms |
3 |
Bathrooms (Full / Half) |
3 / 1 |
| Total Living Sq Ft |
3,111 |
| Total Covered Sq Ft |
3,854 |
| Total Dimensions |
Width |
Depth |
Height |
| |
28' 4" |
72' 10" |
10' 0" |
| Standard Features |
| |
First Floor |
Other Floors |
| Square Footage |
1,216 |
1,895 |
| Bedrooms |
0 |
3 |
| Ceiling Height(s) |
9' 0" |
|
| Master Bedroom | | X |
| Dining Room | X | |
| Living Room | X | |
| Family Room | X | |
| Game Room | | X |
| Study | X | |
| Guest Room | | X |
| Garage Info |
2 car, Front Load, Straight In |
| Stair Info |
Standard |
|