|
 |
|
In addition to saving your plans, your portfolio provides easy access to plan brochures that let you view, print, and compare plans before making your final selection. Requires Account. |
 |
 |
The Plan Brochure contains all the information you need to compare and make your final selection. For a single plan, click the View Brochure below. To print more than one plan, click Add to My Portfolio and access them from there |
| |
Justin 5145 150155 |
 |
| Printed Plans | $0.00 |
| Plans On CD | $0.00 |
|
 |
 |
|
|
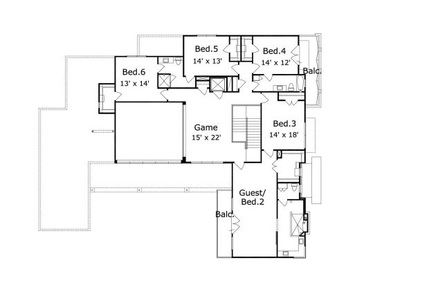
Special Features
Courtyard
Cov'd. Pavilion
Master Down
Optional Elevator
Theater/Media
| Specifications |
| Style |
Contemporary |
| Exterior Materials |
Stone & Stucco |
| Bedrooms |
6 |
Bathrooms (Full / Half) |
4 / 1 |
| Total Living Sq Ft |
5,145 |
| Total Covered Sq Ft |
7,267 |
| Total Dimensions |
Width |
Depth |
Height |
| |
70' 0" |
88' 0" |
35' 0" |
| Standard Features |
| |
First Floor |
Other Floors |
| Square Footage |
2,712 |
2,433 |
| Bedrooms |
1 |
5 |
| Ceiling Height(s) |
12' 0" |
10' 0" |
| Master Bedroom | X | |
| Dining Room | X | |
| Living Room | X | |
| Family Room | X | |
| Game Room | | X |
| Study | X | |
| Guest Room | | X |
| Garage Info |
2 car, Front Load, Straight In |
|