|
 |
|
In addition to saving your plans, your portfolio provides easy access to plan brochures that let you view, print, and compare plans before making your final selection. Requires Account. |
 |
 |
The Plan Brochure contains all the information you need to compare and make your final selection. For a single plan, click the View Brochure below. To print more than one plan, click Add to My Portfolio and access them from there |
| |
Rock 3240 150202.1 |
 |
| Printed Plans | $0.00 |
| Plans On CD | $0.00 |
|
 |
 |
|
|
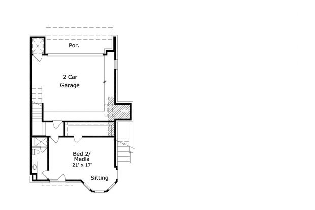
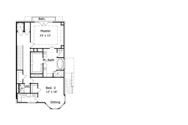
Special Features
Ext. Balcony
Foyer
Portico
| Specifications |
| Style |
Traditional |
| Exterior Materials |
Brick |
| Bedrooms |
3 |
Bathrooms (Full / Half) |
3 / 1 |
| Total Living Sq Ft |
3,240 |
| Total Covered Sq Ft |
4,276 |
| Total Dimensions |
Width |
Depth |
Height |
| |
33' 6" |
51' 4" |
46' 4" |
| Standard Features |
| |
First Floor |
Other Floors |
| Square Footage |
600 |
2,640 |
| Bedrooms |
1 |
2 |
| Ceiling Height(s) |
9' 0" |
10' 0" |
| Master Bedroom | | X |
| Dining Room | | X |
| Living Room | | X |
| Family Room | | X |
| Study | | X |
| Guest Room | X | |
| Garage Info |
2 car, Rear Load, Straight In |
|