|
 |
|
In addition to saving your plans, your portfolio provides easy access to plan brochures that let you view, print, and compare plans before making your final selection. Requires Account. |
 |
 |
The Plan Brochure contains all the information you need to compare and make your final selection. For a single plan, click the View Brochure below. To print more than one plan, click Add to My Portfolio and access them from there |
| |
Nye 7595 060357 |
 |
| Printed Plans | $0.00 |
| Plans On CD | $0.00 |
|
 |
 |
|
|
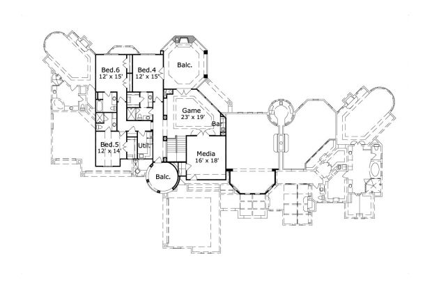
Special Features
Cov'd. Rear Porch
Cov'd. Pavilion
Butler Pantry
Billards Room
Bar
2 Master Bedrooms
Cov'd. Terrace
Foyer
Gallery
Home Office
Master Down
Outdoor Fireplace
Outdoor Kitchen
Storage
Theater/Media
| Specifications |
| Style |
Hill Country |
| Exterior Materials |
Stone & Stucco |
| Bedrooms |
6 |
Bathrooms (Full / Half) |
6 / 2 |
| Total Living Sq Ft |
7,595 |
| Total Covered Sq Ft |
10,242 |
| Total Dimensions |
Width |
Depth |
Height |
| |
144' 2" |
91' 11" |
38' 10" |
| Standard Features |
| |
First Floor |
Other Floors |
| Square Footage |
5,518 |
2,077 |
| Bedrooms |
3 |
3 |
| Ceiling Height(s) |
12' 0" |
9' 0" |
| Master Bedroom | X | |
| Dining Room | X | |
| Living Room | X | |
| Family Room | X | |
| Game Room | | X |
| Study | X | |
| Guest Room | X | |
| Home Theater | | X |
| Garage Info |
4 car, Front Load, Split |
|