|
 |
|
In addition to saving your plans, your portfolio provides easy access to plan brochures that let you view, print, and compare plans before making your final selection. Requires Account. |
 |
 |
The Plan Brochure contains all the information you need to compare and make your final selection. For a single plan, click the View Brochure below. To print more than one plan, click Add to My Portfolio and access them from there |
| |
Trevor 2543 070338 |
 |
| Printed Plans | $0.00 |
| Plans On CD | $0.00 |
|
 |
 |
|
|
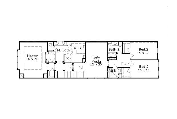
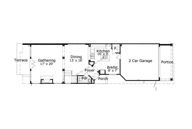
Special Features
Cov'd. Rear Porch
Foyer
Loft
| Specifications |
| Style |
Craftsman/Victorian |
| Exterior Materials |
Siding |
| Bedrooms |
3 |
Bathrooms (Full / Half) |
2 / 1 |
| Total Living Sq Ft |
2,543 |
| Total Covered Sq Ft |
3,213 |
| Total Dimensions |
Width |
Depth |
Height |
| |
21' 0" |
80' 10" |
30' 11" |
| Standard Features |
| |
First Floor |
Other Floors |
| Square Footage |
935 |
1,608 |
| Bedrooms |
0 |
3 |
| Ceiling Height(s) |
10' 0" |
9' 0" |
| Master Bedroom | | X |
| Dining Room | X | |
| Living Room | X | |
| Family Room | X | |
| Guest Room | | X |
| Garage Info |
2 car, Front Load, Straight In |
|