|
 |
|
In addition to saving your plans, your portfolio provides easy access to plan brochures that let you view, print, and compare plans before making your final selection. Requires Account. |
 |
 |
The Plan Brochure contains all the information you need to compare and make your final selection. For a single plan, click the View Brochure below. To print more than one plan, click Add to My Portfolio and access them from there |
| |
Maurice 3290 120403 |
 |
| Printed Plans | $550.00 |
| Plans On CD | $1,000.00 |
|
 |
 |
|
|
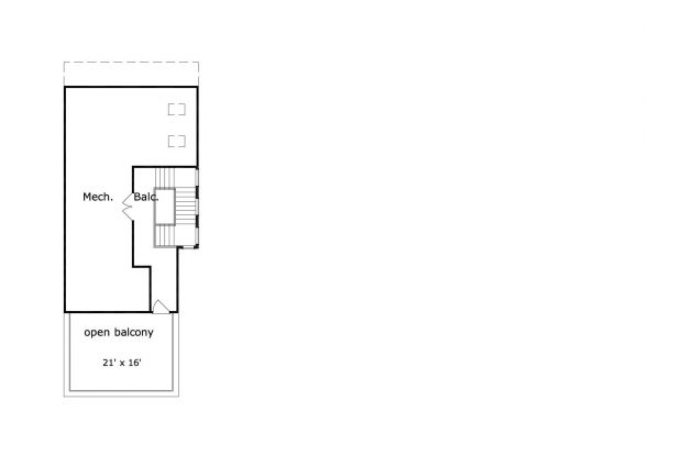
Special Features
Foyer
Ext. Balcony
Cov'd. Rear Porch
Lanai
Storage
| Specifications |
| Style |
Duplex/Townhouse |
| Exterior Materials |
Stone & Stucco |
| Bedrooms |
3 |
Bathrooms (Full / Half) |
3 / 1 |
| Total Living Sq Ft |
3,302 |
| Total Covered Sq Ft |
4,871 |
| Total Dimensions |
Width |
Depth |
Height |
| |
24' 8" |
61' 4" |
46' 5" |
| Standard Features |
| |
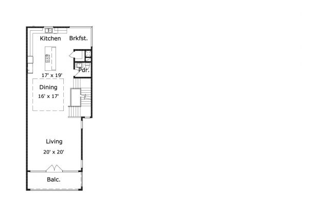
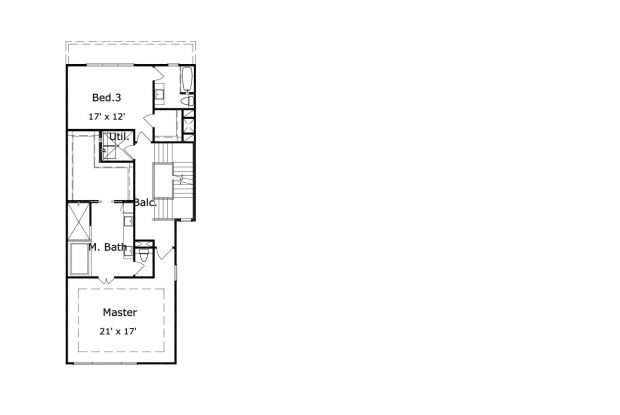
First Floor |
Other Floors |
| Square Footage |
741 |
2,561 |
| Bedrooms |
1 |
2 |
| Ceiling Height(s) |
9' 0" |
11' 0" |
| Master Bedroom | | X |
| Dining Room | | X |
| Living Room | | X |
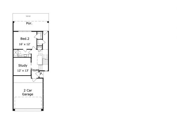
| Study | X | |
| Guest Room | X | |
| Garage Info |
2 car, Any, Straight In |
| Stair Info |
Split |
|