|
 |
|
In addition to saving your plans, your portfolio provides easy access to plan brochures that let you view, print, and compare plans before making your final selection. Requires Account. |
 |
 |
The Plan Brochure contains all the information you need to compare and make your final selection. For a single plan, click the View Brochure below. To print more than one plan, click Add to My Portfolio and access them from there |
| |
Kardash 1982 130002.2 |
 |
| Printed Plans | $250.00 |
| Plans On CD | $450.00 |
|
 |
 |
|
|
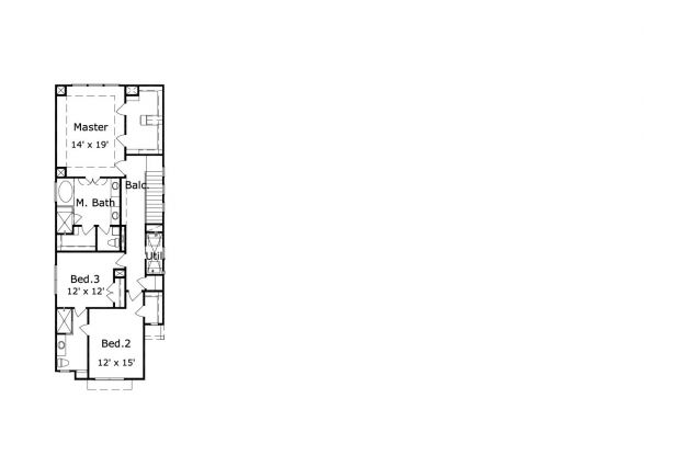
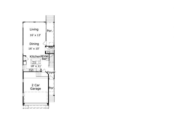
Special Features
Cov'd. Side Porch
Foyer
Int. Balcony
Master Up
Wine Room
| Specifications |
| Style |
Duplex/Townhouse |
| Exterior Materials |
Stucco |
| Bedrooms |
3 |
Bathrooms (Full / Half) |
2 / 1 |
| Total Living Sq Ft |
1,982 |
| Total Covered Sq Ft |
2,565 |
| Total Dimensions |
Width |
Depth |
Height |
| |
22' 6" |
61' 0" |
31' 11" |
| Standard Features |
| |
First Floor |
Other Floors |
| Square Footage |
726 |
1,256 |
| Bedrooms |
0 |
3 |
| Ceiling Height(s) |
10' 0" |
9' 0" |
| Master Bedroom | | X |
| Dining Room | X | |
| Living Room | X | |
| Garage Info |
2 car, Any, Straight In |
| Stair Info |
Standard |
|