|
 |
|
In addition to saving your plans, your portfolio provides easy access to plan brochures that let you view, print, and compare plans before making your final selection. Requires Account. |
 |
 |
The Plan Brochure contains all the information you need to compare and make your final selection. For a single plan, click the View Brochure below. To print more than one plan, click Add to My Portfolio and access them from there |
| |
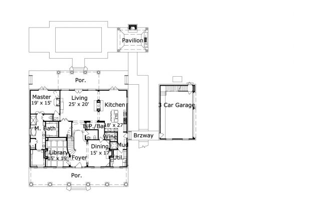
Tayport 6042 120366 |
 |
| Printed Plans | $0.00 |
| Plans On CD | $0.00 |
|
 |
 |
|
|
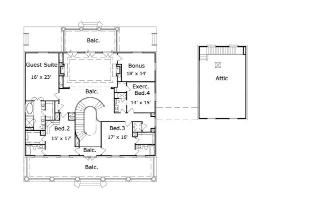
Special Features
Bar
Bonus Room
Breezeway
Butler Pantry
Cov'd. Front Porch
Cov'd. Pavilion
Cov'd. Rear Porch
Ext. Balcony
Foyer
Mud Room
Outdoor Fireplace
Outdoor Kitchen
Wine Closet
| Specifications |
| Style |
Colonial |
| Exterior Materials |
Brick |
| Bedrooms |
5 |
Bathrooms (Full / Half) |
5 / 1 |
| Total Living Sq Ft |
6,042 |
| Total Covered Sq Ft |
9,839 |
| Total Dimensions |
Width |
Depth |
Height |
| |
108' 4" |
105' 6" |
38' 7" |
| Standard Features |
| |
First Floor |
Other Floors |
| Square Footage |
3,302 |
2,740 |
| Bedrooms |
1 |
4 |
| Ceiling Height(s) |
12' 0" |
10' 0" |
| Master Bedroom | X | |
| Dining Room | X | |
| Living Room | X | |
| Family Room | X | |
| Study | X | |
| Guest Room | | X |
| Garage Info |
3 car, Side Load, Detached |
|