|
 |
|
In addition to saving your plans, your portfolio provides easy access to plan brochures that let you view, print, and compare plans before making your final selection. Requires Account. |
 |
 |
The Plan Brochure contains all the information you need to compare and make your final selection. For a single plan, click the View Brochure below. To print more than one plan, click Add to My Portfolio and access them from there |
| |
Kedleston 5060 100232 |
 |
| Printed Plans | $750.00 |
| Plans On CD | $1,200.00 |
|
 |
 |
|
|
Special Features
Porte Cochere
Cov'd. Front Porch
Cov'd. Pavilion
Gallery
Foyer
| Specifications |
| Style |
Ranch |
| Exterior Materials |
Brick and Stone |
| Bedrooms |
4 |
Bathrooms (Full / Half) |
4 / 0 |
| Total Living Sq Ft |
5,060 |
| Total Covered Sq Ft |
8,491 |
| Total Dimensions |
Width |
Depth |
Height |
| |
159' 0" |
90' 2" |
32' 8" |
| Standard Features |
| |
First Floor |
Other Floors |
| Square Footage |
4,038 |
1,022 |
| Bedrooms |
2 |
2 |
| Ceiling Height(s) |
12' 0" |
9' 0" |
| Master Bedroom | X | |
| Dining Room | X | |
| Living Room | X | |
| Family Room | X | |
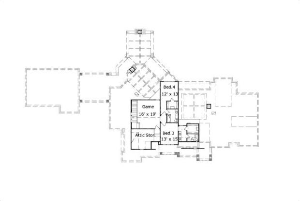
| Game Room | | X |
| Study | X | |
| Guest Room | X | |
| Home Theater | | X |
| Garage Info |
3 car, Front Load, Split |
| Stair Info |
Standard |
|