|
 |
|
In addition to saving your plans, your portfolio provides easy access to plan brochures that let you view, print, and compare plans before making your final selection. Requires Account. |
 |
 |
The Plan Brochure contains all the information you need to compare and make your final selection. For a single plan, click the View Brochure below. To print more than one plan, click Add to My Portfolio and access them from there |
| |
Rozonda 4672 100105 |
 |
| Printed Plans | $700.00 |
| Plans On CD | $1,150.00 |
|
 |
 |
|
|
Special Features
Theater/Media
Cov'd. Rear Porch
Outdoor Kitchen
Playroom
Foyer
Loft
Courtyard
| Specifications |
| Style |
Country French |
| Exterior Materials |
Brick & Stucco |
| Bedrooms |
4 |
Bathrooms (Full / Half) |
4 / 1 |
| Total Living Sq Ft |
4,672 |
| Total Covered Sq Ft |
5,947 |
| Total Dimensions |
Width |
Depth |
Height |
| |
51' 0" |
106' 2" |
31' 2" |
| Standard Features |
| |
First Floor |
Other Floors |
| Square Footage |
3,056 |
1,616 |
| Bedrooms |
2 |
2 |
| Ceiling Height(s) |
10' 0" |
9' 0" |
| Master Bedroom | X | |
| Dining Room | X | |
| Living Room | X | |
| Family Room | X | |
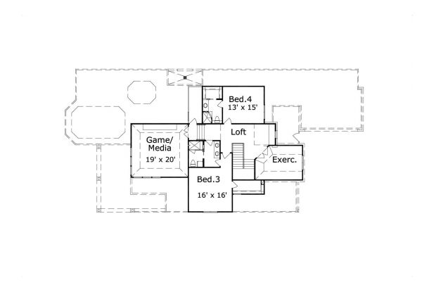
| Game Room | | X |
| Study | X | |
| Guest Room | X | |
| Home Theater | | X |
| Garage Info |
3 car, Front Load, Split |
| Stair Info |
Standard |
|