|
 |
|
In addition to saving your plans, your portfolio provides easy access to plan brochures that let you view, print, and compare plans before making your final selection. Requires Account. |
 |
 |
The Plan Brochure contains all the information you need to compare and make your final selection. For a single plan, click the View Brochure below. To print more than one plan, click Add to My Portfolio and access them from there |
| |
Mitchell 4187 090218 |
 |
| Printed Plans | $650.00 |
| Plans On CD | $1,100.00 |
|
 |
 |
|
|
Special Features
Butler Pantry
Home Office
Theater/Media
Foyer
| Specifications |
| Style |
Mediterranean |
| Exterior Materials |
Stucco |
| Bedrooms |
5 |
Bathrooms (Full / Half) |
4 / 1 |
| Total Living Sq Ft |
4,173 |
| Total Covered Sq Ft |
5,337 |
| Total Dimensions |
Width |
Depth |
Height |
| |
59' 8" |
83' 0" |
32' 11" |
| Standard Features |
| |
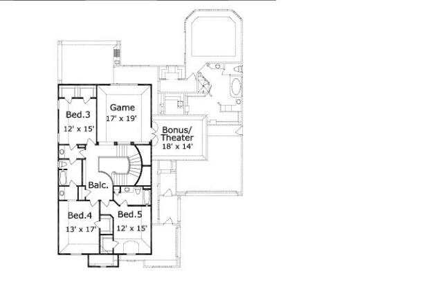
First Floor |
Other Floors |
| Square Footage |
2,686 |
1,487 |
| Bedrooms |
2 |
3 |
| Ceiling Height(s) |
10' 0" |
9' 0" |
| Master Bedroom | X | |
| Dining Room | X | |
| Living Room | X | |
| Family Room | X | |
| Game Room | | X |
| Study | X | |
| Guest Room | | X |
| Home Theater | | X |
| Garage Info |
1 car, Front Load, Swing (Entry Facing) |
| Stair Info |
Curved |
|