|
 |
|
In addition to saving your plans, your portfolio provides easy access to plan brochures that let you view, print, and compare plans before making your final selection. Requires Account. |
 |
 |
The Plan Brochure contains all the information you need to compare and make your final selection. For a single plan, click the View Brochure below. To print more than one plan, click Add to My Portfolio and access them from there |
| |
The Randolph 4130 099043 |
 |
| Printed Plans | $650.00 |
| Plans On CD | $1,100.00 |
|
 |
 |
|
|
Special Features
Butler Pantry
Theater/Media
Cov'd. Rear Porch
Sep. Master Closet
Computer Alcove
Master w/Sitting
| Specifications |
| Style |
Traditional |
| Exterior Materials |
Stucco |
| Bedrooms |
4 |
Bathrooms (Full / Half) |
3 / 1 |
| Total Living Sq Ft |
4,130 |
| Total Covered Sq Ft |
5,021 |
| Total Dimensions |
Width |
Depth |
Height |
| |
69' 6" |
59' 6" |
32' 6" |
| Standard Features |
| |
First Floor |
Other Floors |
| Square Footage |
2,389 |
1,741 |
| Bedrooms |
1 |
3 |
| Ceiling Height(s) |
10' 0" |
9' 0" |
| Master Bedroom | X | |
| Dining Room | X | |
| Living Room | X | |
| Family Room | X | |
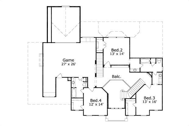
| Game Room | | X |
| Guest Room | | X |
| Garage Info |
3 car, Side Load, Swing (Side Facing) |
| Stair Info |
Standard (2 flights) |
|