|
 |
|
In addition to saving your plans, your portfolio provides easy access to plan brochures that let you view, print, and compare plans before making your final selection. Requires Account. |
 |
 |
The Plan Brochure contains all the information you need to compare and make your final selection. For a single plan, click the View Brochure below. To print more than one plan, click Add to My Portfolio and access them from there |
| |
Keegan 4592 010724 |
 |
| Printed Plans | $700.00 |
| Plans On CD | $1,150.00 |
|
 |
 |
|
|
Special Features
The summer kitchen square footage of 51 sq. ft. & the attic storage square footage of 492 sq. ft. are not included in the living area square footage of this plan.
Cov'd. Front Porch
Outdoor Kitchen
Bar
Int. Balcony
Foyer
Storage
| Specifications |
| Style |
Traditional |
| Exterior Materials |
Brick & Cultured Stone |
| Bedrooms |
4 |
Bathrooms (Full / Half) |
3 / 1 |
| Total Living Sq Ft |
4,592 |
| Total Covered Sq Ft |
5,817 |
| Total Dimensions |
Width |
Depth |
Height |
| |
61' 4" |
89' 8" |
35' 8" |
| Standard Features |
| |
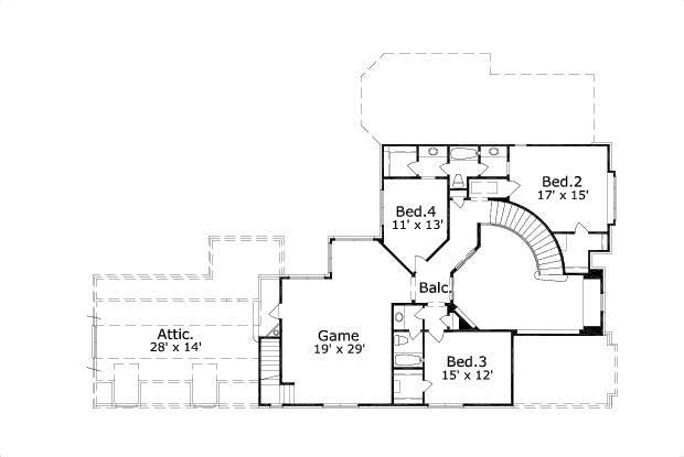
First Floor |
Other Floors |
| Square Footage |
2,961 |
1,631 |
| Bedrooms |
1 |
3 |
| Ceiling Height(s) |
10' 0" |
9' 0" |
| Master Bedroom | X | |
| Dining Room | X | |
| Living Room | X | |
| Family Room | X | |
| Game Room | | X |
| Guest Room | | X |
| Garage Info |
3 car, Front Load, Swing (Side Facing) |
| Stair Info |
Curved |
|