|
 |
|
In addition to saving your plans, your portfolio provides easy access to plan brochures that let you view, print, and compare plans before making your final selection. Requires Account. |
 |
 |
The Plan Brochure contains all the information you need to compare and make your final selection. For a single plan, click the View Brochure below. To print more than one plan, click Add to My Portfolio and access them from there |
| |
Joncels 8283 070348 |
 |
| Printed Plans | $1,050.00 |
| Plans On CD | $1,500.00 |
|
 |
 |
|
|
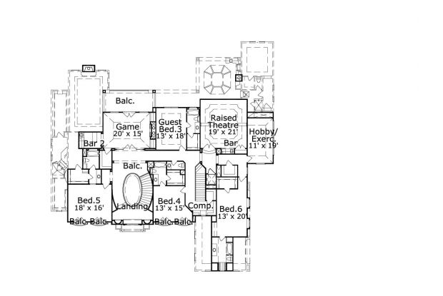
Special Features
Wine Room
Theater/Media
Sep. Master Closet
Outdoor Kitchen
Outdoor Fireplace
Optional Elevator
Master Fireplace
Int. Balcony
Hobby Room
Gallery
Foyer
Ext. Balcony
Exercise Room
Computer Alcove
Bar
Art Niche
| Specifications |
| Style |
French |
| Exterior Materials |
Stucco |
| Bedrooms |
6 |
Bathrooms (Full / Half) |
5 / 1 |
| Total Living Sq Ft |
8,283 |
| Total Covered Sq Ft |
10,094 |
| Total Dimensions |
Width |
Depth |
Height |
| |
93' 10" |
97' 0" |
36' 2" |
| Standard Features |
| |
First Floor |
Other Floors |
| Square Footage |
4,551 |
3,732 |
| Bedrooms |
2 |
3 |
| Ceiling Height(s) |
12' 0" |
10' 0" |
| Master Bedroom | X | |
| Dining Room | X | |
| Living Room | X | |
| Family Room | X | |
| Game Room | | X |
| Study | X | |
| Guest Room | X | |
| Home Theater | | X |
| Garage Info |
3 car, Front Load, Swing (Side Facing) |
| Stair Info |
Curved |
|