|
 |
|
In addition to saving your plans, your portfolio provides easy access to plan brochures that let you view, print, and compare plans before making your final selection. Requires Account. |
 |
 |
The Plan Brochure contains all the information you need to compare and make your final selection. For a single plan, click the View Brochure below. To print more than one plan, click Add to My Portfolio and access them from there |
| |
Luzon 4784 070053 |
 |
| Printed Plans | $700.00 |
| Plans On CD | $1,150.00 |
|
 |
 |
|
|
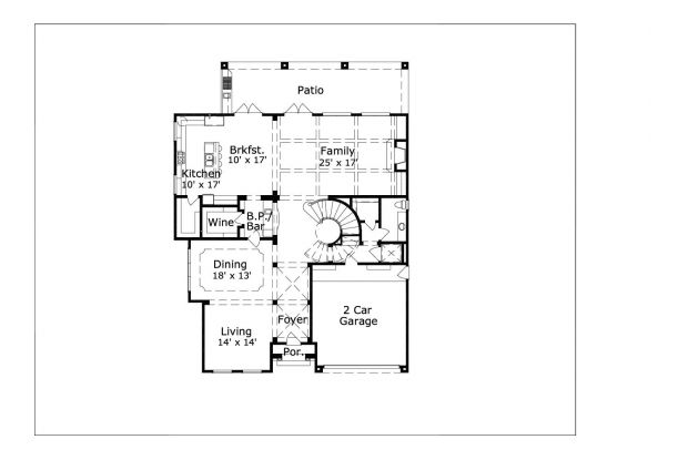
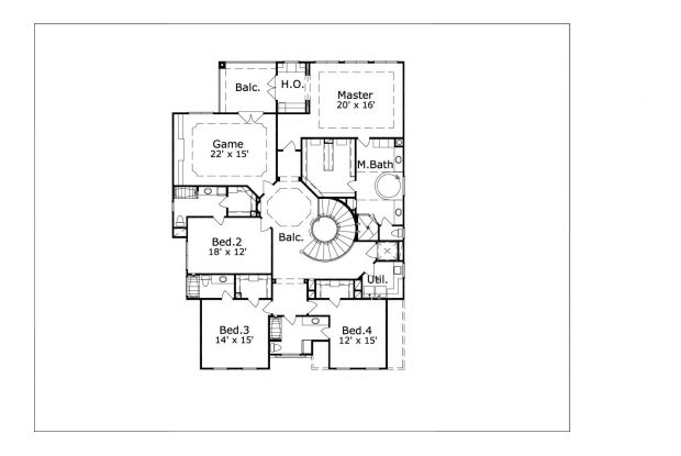
Special Features
Butler Pantry
Coffee/Juice Bar
Ext. Balcony
Cov'd. Rear Porch
Cov'd. Front Porch
Outdoor Kitchen
Bar
Computer Alcove
Optional Elevator
Groin Vault
Foyer
Wine Room
| Specifications |
| Style |
Mediterranean |
| Exterior Materials |
Stucco |
| Bedrooms |
4 |
Bathrooms (Full / Half) |
4 / 1 |
| Total Living Sq Ft |
4,784 |
| Total Covered Sq Ft |
5,858 |
| Total Dimensions |
Width |
Depth |
Height |
| |
50' 0" |
66' 4" |
33' 3" |
| Standard Features |
| |
First Floor |
Other Floors |
| Square Footage |
2,081 |
2,703 |
| Bedrooms |
0 |
4 |
| Ceiling Height(s) |
11' 0" |
9' 0" |
| Master Bedroom | | X |
| Dining Room | X | |
| Living Room | X | |
| Family Room | X | |
| Game Room | | X |
| Guest Room | | X |
| Garage Info |
2 car, Front Load, Straight In |
| Stair Info |
Spiral |
|