|
 |
|
In addition to saving your plans, your portfolio provides easy access to plan brochures that let you view, print, and compare plans before making your final selection. Requires Account. |
 |
 |
The Plan Brochure contains all the information you need to compare and make your final selection. For a single plan, click the View Brochure below. To print more than one plan, click Add to My Portfolio and access them from there |
| |
Watersong N-3549.2 050675n.2 |
 |
| Printed Plans | $600.00 |
| Plans On CD | $1,050.00 |
|
 |
 |
|
|
Special Features
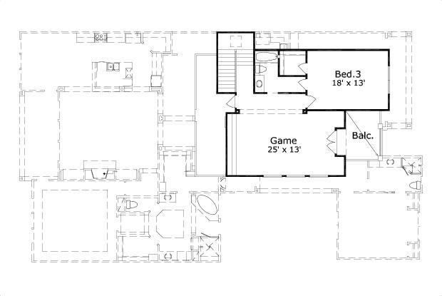
The first floor square footage does not include the casita/bedroom 2. The additional square footage for the casita/bedroom 2 is 358 square feet.
Ext. Balcony
Casita
Sep. Master Closet
Outdoor Kitchen
Portico
Entry Courtyard
Playroom
Cov'd. Terrace
Foyer
Vestibule
Art Niche
| Specifications |
| Style |
Tuscan |
| Exterior Materials |
Stone & Stucco |
| Bedrooms |
3 |
Bathrooms (Full / Half) |
3 / 1 |
| Total Living Sq Ft |
3,549 |
| Total Covered Sq Ft |
4,568 |
| Total Dimensions |
Width |
Depth |
Height |
| |
50' 0" |
87' 4" |
31' 5" |
| Standard Features |
| |
First Floor |
Other Floors |
| Square Footage |
2,397 |
794 |
| Bedrooms |
2 |
1 |
| Ceiling Height(s) |
10' 0" |
9' 0" |
| Master Bedroom | X | |
| Dining Room | X | |
| Living Room | X | |
| Game Room | | X |
| Study | X | |
| Guest Room | X | |
| Garage Info |
2 car, Front Load, Straight In |
| Stair Info |
Standard |
|