|
 |
|
In addition to saving your plans, your portfolio provides easy access to plan brochures that let you view, print, and compare plans before making your final selection. Requires Account. |
 |
 |
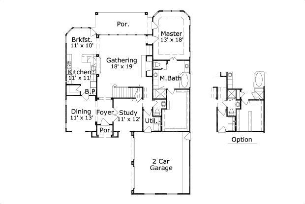
The Plan Brochure contains all the information you need to compare and make your final selection. For a single plan, click the View Brochure below. To print more than one plan, click Add to My Portfolio and access them from there |
| |
Kieler 3115 010528 |
 |
| Printed Plans | $550.00 |
| Plans On CD | $1,000.00 |
|
 |
 |
|
|
Special Features
Butler Pantry
Theater/Media
Ext. Balcony
Cov'd. Rear Porch
Computer Alcove
Texas Basement
Cov'd. Terrace
Foyer
Studio
| Specifications |
| Style |
Mediterranean |
| Exterior Materials |
Stucco |
| Bedrooms |
6 |
Bathrooms (Full / Half) |
4 / 0 |
| Total Living Sq Ft |
3,115 |
| Total Covered Sq Ft |
4,161 |
| Total Dimensions |
Width |
Depth |
Height |
| |
46' 0" |
67' 10" |
30' 11" |
| Standard Features |
| |
First Floor |
Other Floors |
| Square Footage |
1,784 |
1,331 |
| Bedrooms |
1 |
5 |
| Ceiling Height(s) |
9' 0" |
8' 0" |
| Master Bedroom | X | |
| Dining Room | X | |
| Living Room | X | |
| Study | X | |
| Guest Room | | X |
| Home Theater | | X |
| Garage Info |
2 car, Side Load, Swing (Entry Facing) |
| Stair Info |
Standard |
|