|
 |
|
In addition to saving your plans, your portfolio provides easy access to plan brochures that let you view, print, and compare plans before making your final selection. Requires Account. |
 |
 |
The Plan Brochure contains all the information you need to compare and make your final selection. For a single plan, click the View Brochure below. To print more than one plan, click Add to My Portfolio and access them from there |
| |
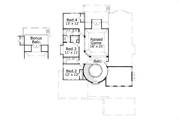
The Cambria 4198.2 041031.2 |
 |
| Printed Plans | $650.00 |
| Plans On CD | $1,100.00 |
|
 |
 |
|
|
Special Features
Butler Pantry
Casita
Bonus Room
Cov'd. Rear Porch
Outdoor Kitchen
Bar
Master w/Sitting
Entry Courtyard
Unfinished Storage
Tile Roof
Optional Balcony
Gallery
Int. Balcony
Cov'd. Terrace
Foyer
2 Story Living
| Specifications |
| Style |
Tuscan |
| Exterior Materials |
Stucco & Cultured Stone |
| Bedrooms |
4 |
Bathrooms (Full / Half) |
3 / 1 |
| Total Living Sq Ft |
4,198 |
| Total Covered Sq Ft |
5,378 |
| Total Dimensions |
Width |
Depth |
Height |
| |
59' 0" |
81' 0" |
32' 3" |
| Standard Features |
| |
First Floor |
Other Floors |
| Square Footage |
2,685 |
1,513 |
| Bedrooms |
1 |
3 |
| Ceiling Height(s) |
10' 0" |
9' 0" |
| Master Bedroom | X | |
| Dining Room | X | |
| Living Room | X | |
| Family Room | X | |
| Game Room | | X |
| Study | X | |
| Guest Room | | X |
| Garage Info |
3 car, Front Load, Split |
| Stair Info |
Spiral |
|