|
 |
|
In addition to saving your plans, your portfolio provides easy access to plan brochures that let you view, print, and compare plans before making your final selection. Requires Account. |
 |
 |
The Plan Brochure contains all the information you need to compare and make your final selection. For a single plan, click the View Brochure below. To print more than one plan, click Add to My Portfolio and access them from there |
| |
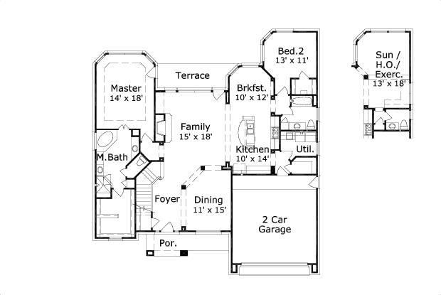
The Calico 2932.1 020203.1 |
 |
| Printed Plans | $500.00 |
| Plans On CD | $950.00 |
|
 |
 |
|
|
Special Features
Home Office
Exercise Room
Theater/Media
Sunroom
Bonus Room
Cov'd. Rear Porch
Unfinished Storage
Foyer
2 Story Family Room
| Specifications |
| Style |
Traditional |
| Exterior Materials |
Brick |
| Bedrooms |
4 |
Bathrooms (Full / Half) |
3 / 0 |
| Total Living Sq Ft |
2,932 |
| Total Covered Sq Ft |
3,834 |
| Total Dimensions |
Width |
Depth |
Height |
| |
55' 0" |
59' 8" |
28' 11" |
| Standard Features |
| |
First Floor |
Other Floors |
| Square Footage |
2,041 |
891 |
| Bedrooms |
2 |
2 |
| Ceiling Height(s) |
9' 0" |
8' 0" |
| Master Bedroom | X | |
| Dining Room | X | |
| Family Room | X | |
| Guest Room | X | |
| Home Theater | | X |
| Garage Info |
2 car, Front Load, Straight In |
| Stair Info |
Standard |
|