|
 |
|
In addition to saving your plans, your portfolio provides easy access to plan brochures that let you view, print, and compare plans before making your final selection. Requires Account. |
 |
 |
The Plan Brochure contains all the information you need to compare and make your final selection. For a single plan, click the View Brochure below. To print more than one plan, click Add to My Portfolio and access them from there |
| |
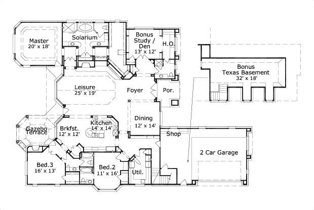
The Harris 3780 098340 |
 |
| Printed Plans | $600.00 |
| Plans On CD | $1,050.00 |
|
 |
 |
|
|
Special Features
Home Office
Bonus Room
Outdoor Kitchen
Cov'd. Pavilion
Bar
Texas Basement
Move your mouse over the thumbnails to change the large image
| Specifications |
| Style |
Transitional |
| Exterior Materials |
Brick |
| Bedrooms |
4 |
Bathrooms (Full / Half) |
4 / 0 |
| Total Living Sq Ft |
3,780 |
| Total Covered Sq Ft |
5,553 |
| Total Dimensions |
Width |
Depth |
Height |
| |
70' 0" |
101' 0" |
30' 6" |
| Standard Features |
| |
First Floor |
Other Floors |
| Square Footage |
3,780 |
0 |
| Bedrooms |
4 |
0 |
| Ceiling Height(s) |
10' 0" |
9' 0" |
| Master Bedroom | X | |
| Dining Room | X | |
| Living Room | X | |
| Family Room | X | |
| Study | X | |
| Guest Room | X | |
| Garage Info |
2 car, Front Load, Swing (Side Facing) |
|