|
 |
|
In addition to saving your plans, your portfolio provides easy access to plan brochures that let you view, print, and compare plans before making your final selection. Requires Account. |
 |
 |
The Plan Brochure contains all the information you need to compare and make your final selection. For a single plan, click the View Brochure below. To print more than one plan, click Add to My Portfolio and access them from there |
| |
The Bakerstreet 4233.5AG3 020608.5AG3 |
 |
| Printed Plans | $650.00 |
| Plans On CD | $1,100.00 |
|
 |
 |
|
|
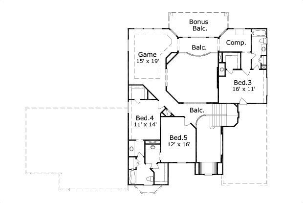
Special Features
Butler Pantry
Ext. Balcony
Cov'd. Rear Porch
Computer Alcove
Portico
| Specifications |
| Style |
Traditional |
| Exterior Materials |
Stucco |
| Bedrooms |
5 |
Bathrooms (Full / Half) |
4 / 0 |
| Total Living Sq Ft |
4,233 |
| Total Covered Sq Ft |
5,569 |
| Total Dimensions |
Width |
Depth |
Height |
| |
83' 4" |
62' 4" |
34' 7" |
| Standard Features |
| |
First Floor |
Other Floors |
| Square Footage |
2,516 |
1,717 |
| Bedrooms |
2 |
3 |
| Ceiling Height(s) |
9' 0" |
8' 0" |
| Master Bedroom | X | |
| Dining Room | X | |
| Living Room | X | |
| Family Room | X | |
| Game Room | | X |
| Study | X | |
| Guest Room | X | |
| Garage Info |
3 car, Front Load, Straight In |
| Stair Info |
Standard |
|