|
 |
|
In addition to saving your plans, your portfolio provides easy access to plan brochures that let you view, print, and compare plans before making your final selection. Requires Account. |
 |
 |
The Plan Brochure contains all the information you need to compare and make your final selection. For a single plan, click the View Brochure below. To print more than one plan, click Add to My Portfolio and access them from there |
| |
The Sweet Breeze 3913 020056 |
 |
| Printed Plans | $600.00 |
| Plans On CD | $1,050.00 |
|
 |
 |
|
|
Special Features
Butler Pantry
Theater/Media
Quarters
Ext. Balcony
Casita
Cov'd. Rear Porch
Sep. Master Closet
Outdoor Kitchen
Bar
Cov'd. Side Porch
Master w/Sitting
Portico
Entry Courtyard
Unfinished Storage
Gallery
Foyer
| Specifications |
| Style |
Mediterranean |
| Exterior Materials |
Stucco |
| Bedrooms |
4 |
Bathrooms (Full / Half) |
4 / 1 |
| Total Living Sq Ft |
3,913 |
| Total Covered Sq Ft |
5,172 |
| Total Dimensions |
Width |
Depth |
Height |
| |
54' 0" |
89' 10" |
31' 9" |
| Standard Features |
| |
First Floor |
Other Floors |
| Square Footage |
2,428 |
1,485 |
| Bedrooms |
1 |
3 |
| Ceiling Height(s) |
10' 0" |
9' 0" |
| Master Bedroom | X | |
| Dining Room | X | |
| Living Room | X | |
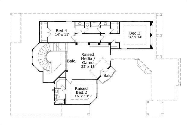
| Game Room | | X |
| Guest Room | | X |
| Home Theater | | X |
| Garage Info |
2 car, Front Load, Straight In |
| Stair Info |
Spiral |
|