|
 |
|
In addition to saving your plans, your portfolio provides easy access to plan brochures that let you view, print, and compare plans before making your final selection. Requires Account. |
 |
 |
The Plan Brochure contains all the information you need to compare and make your final selection. For a single plan, click the View Brochure below. To print more than one plan, click Add to My Portfolio and access them from there |
| |
The Tradewinds 2700 030548 |
 |
| Printed Plans | $500.00 |
| Plans On CD | $950.00 |
|
 |
 |
|
|
Special Features
Exercise Room
Cov'd. Rear Porch
Outdoor Kitchen
Cov'd. Pavilion
Master w/Sitting
Unfinished Storage
Golf Cart Storage
Gallery
Foyer
| Specifications |
| Style |
Country French |
| Exterior Materials |
Brick and Stone |
| Bedrooms |
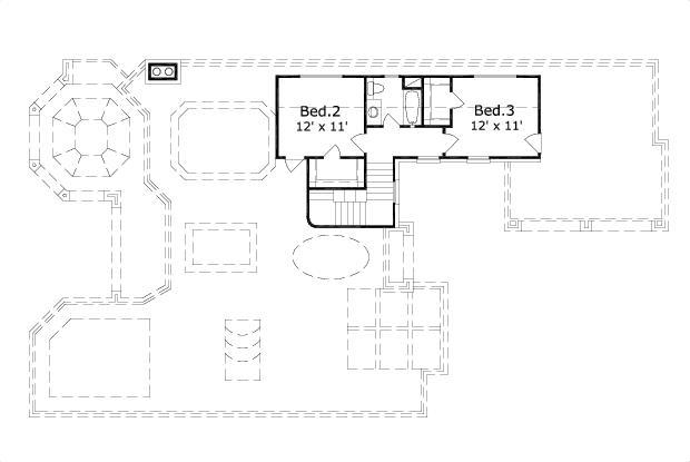
3 |
Bathrooms (Full / Half) |
2 / 1 |
| Total Living Sq Ft |
2,700 |
| Total Covered Sq Ft |
4,043 |
| Total Dimensions |
Width |
Depth |
Height |
| |
50' 0" |
89' 4" |
29' 3" |
| Standard Features |
| |
First Floor |
Other Floors |
| Square Footage |
2,223 |
477 |
| Bedrooms |
1 |
2 |
| Ceiling Height(s) |
10' 0" |
8' 0" |
| Master Bedroom | X | |
| Dining Room | X | |
| Family Room | X | |
| Study | X | |
| Guest Room | | X |
| Garage Info |
2 car, Front Load, Swing (Entry Facing) |
| Stair Info |
Standard |
|