|
 |
|
In addition to saving your plans, your portfolio provides easy access to plan brochures that let you view, print, and compare plans before making your final selection. Requires Account. |
 |
 |
The Plan Brochure contains all the information you need to compare and make your final selection. For a single plan, click the View Brochure below. To print more than one plan, click Add to My Portfolio and access them from there |
| |
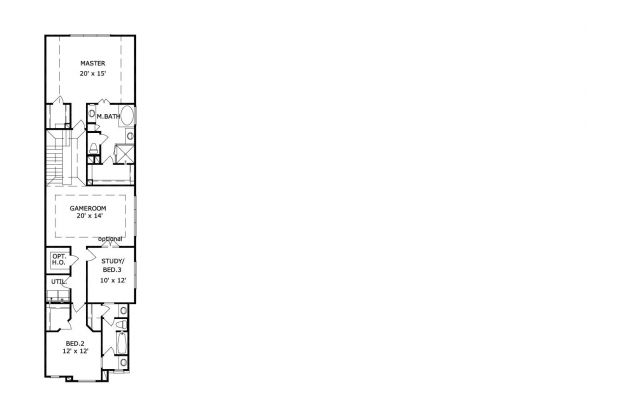
Athens 2422.2 090255.2 |
 |
| Printed Plans | $0.00 |
| Plans On CD | $0.00 |
|
 |
 |
|
|
| Specifications |
| Style |
Craftsman/Victorian |
| Exterior Materials |
Brick & Siding |
| Bedrooms |
3 |
Bathrooms (Full / Half) |
2 / 1 |
| Total Living Sq Ft |
2,422 |
| Total Covered Sq Ft |
2,908 |
| Total Dimensions |
Width |
Depth |
Height |
| |
20' 6" |
76' 0" |
27' 4" |
| Standard Features |
| |
First Floor |
Other Floors |
| Square Footage |
922 |
1,500 |
| Bedrooms |
0 |
3 |
| Ceiling Height(s) |
10' 0" |
8' 0" |
| Master Bedroom | | X |
| Dining Room | X | |
| Living Room | X | |
| Family Room | X | |
| Guest Room | | X |
| Garage Info |
2 car, Front Load, Straight In |
|